System RU7

System RU7

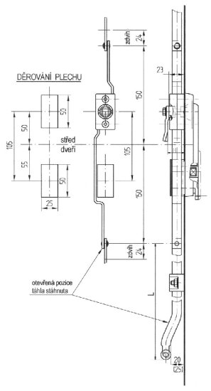
Sheet number in the printed catalog: 1-15

Datasheet in PDF

Description

Variants

Product:
Quantity:
Note:

Add to Order





Aktuality

  • 05.03.2025

    Celozávodní dovolená

    COMPANY HOLIDAY - 2.5. and 9.5.2025 Company will be closed. - 21.7. - 1.8.2025 Company will be ...


Sign in

Sign in Signup

Shopping Cart

Quantity 0 pcs

Shopping Cart

cz de en


About us

The production is focused on indoor lighting, panelboard locks, hangers and keys used especially for panelboards in energetics branch, but in other areas, too.

We are here for you …